塚田ビル
物件情報
塚田ビル の物件概要
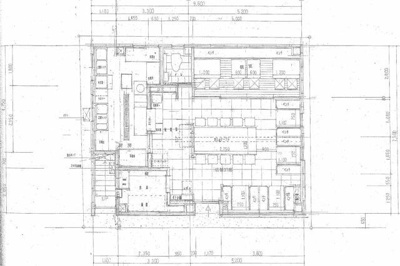
【店舗一部】※地図上に表示される物件の位置は付近住所に所在することを表すものであり、実際の物件所在地とは異なる場合がございます。
塚田ビルの空室情報
飲食店開業で居抜きの賃貸を探すなら|居抜きLOVE > (事業用(賃貸))路線・駅から探す > 東京メトロ半蔵門線 > 水天宮前駅 > 塚田ビル
塚田ビル
物件情報
塚田ビル の物件概要
【店舗一部】※地図上に表示される物件の位置は付近住所に所在することを表すものであり、実際の物件所在地とは異なる場合がございます。
塚田ビルの空室情報

中央区以外の市区町村から探す