新虎ノ門実業会館
物件情報
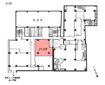
新虎ノ門実業会館 の物件概要
【店舗一部】※地図上に表示される物件の位置は付近住所に所在することを表すものであり、実際の物件所在地とは異なる場合がございます。
新虎ノ門実業会館の空室情報
飲食店開業で居抜きの賃貸を探すなら|居抜きLOVE > (事業用(賃貸))路線・駅から探す > 東京メトロ銀座線 > 虎ノ門駅 > 新虎ノ門実業会館
新虎ノ門実業会館
物件情報
新虎ノ門実業会館 の物件概要
【店舗一部】※地図上に表示される物件の位置は付近住所に所在することを表すものであり、実際の物件所在地とは異なる場合がございます。
新虎ノ門実業会館の空室情報

港区以外の市区町村から探す